
DB 3+1 s lodžií, 64,11m2, Česká Třebová - U Stadionu 580
Prodáno
DB 3+1 s lodžií, 64,11m2, Česká Třebová - U Stadionu 580
Prodáno
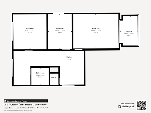
Nabízíme k prodeji družstevní byt 3+1 s lodžií o podlahové plochě 64,11m2, který se nachází ve 3. patře zatepleného bytového domu v České Třebové - U Stadionu 580.
Byt je bezbariérový výtahem lze dojet do mezipatra. Ve zděném bytovém jádře zůstává kuchyňská linka včetně: plynové varné desky, trouby a digestoře. Vybavení dle fotografií je součástí prodeje. Na radiátorech jsou odečtová měřidla, termostatické hlavice. Okna jsou plastová včetně žaluzií. Měsíční předpis plateb je 4372,- Kč/měsíc + elektrika a plyn. K bytu náleží sklep.
Jsou nové stoupačky, na chodbách plastová okna, nová sedlová střecha.
Byt má perfektní dostupnost a kompletní občanskou vybavenost: zastávka autobusu, základní škola, mateřská škola, poliklinika, restaurace, sjezdovka, bazén, zdravotná poliklinika, stadion, Lidl, Tesco, Kaufland. Kabelová televize. V případě hypotéky vám může dát nezávaznou nabídku náš hypoteční specialista. Byt je volný za 10 dní po podpisu dohody o převodu. Energetická třída: D
Podívejte se prosím na 3D sken nemovitosti, získáte tak detailní přehled ohledně nemovitosti, v modelu lze měřit a procházet nemovitost po jednotlivých bodech. Díky tomu máte lepší představu o prostoru.
V realitách jsem od roku 2006. I mé předchozí pracovní aktivity byly spojené s úctou a profesionálním přístupem ke klientům.
Práce realitního makléře mě skutečně baví a snažím se ji odvádět na špičkové úrovni. ... vše s jasným cílem. Prodat vaši nemovitost za co nejlepší cenu a aby nastala vzájemná spokojenost smluvních stran.
Přečtěte si prosím mé tipy a články. Věřím, že vám tyto informace pomohou v rozhodování a že si pro prodej nemovitosti zvolíte tu správnou cestu.
Za každým prodejem nemovitosti se totiž skrývá lidský příběh. A to je důvod, proč by nikdo neměl tak důležitý životní krok podceňovat. Ani prodávající, ani makléř.
Záleží mi na odvedení špičkové práce a na spokojenosti klienta. A dbám na svém dobrém jménu a pověsti. Za mě pak hovoří reference spokojených klientů. http://vaclavberan.cz/reference
Pokud Vás cokoliv dalšího zajímá, neváhejte mě prosím kontaktovat, telefon: 776 773 380, vaclav.beran@reality-bv.cz